產品信息
產品詳情: 門式起重機(又稱龍門起重機)是橋架通過兩側支腿支撐在地面軌道上的橋架型起重機。在結構上由門架、大車運行機構、起重小車和電氣部分等組成。有的門式起重機只在一側有支腿,另一側支撐在廠房或棧橋上運行,稱作半門式起重機。門式起重機的門架上部橋架(含主梁和端梁)、支腿、下橫梁等部分構成。為了擴大起重機作業范圍,主梁可以向一側或兩側伸出支腿以外,形成懸臂。也可采用帶臂架的起重小車,通過臂架的俯仰和旋轉擴大起重機作業范圍。
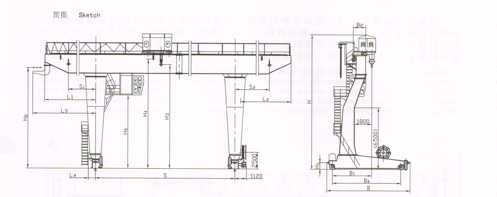
主梁形式 1.單主梁 單主梁門式起重機結構簡單,制造安裝方便,自身質量小,主梁多為偏軌箱形架結構。與雙主梁門式起重機相比,整體剛度要弱一些。因此,當起重量Q≤50t、跨度S≤35m時,可采用這種形式。單主梁門式起重機門腿有L型和C型兩種形式。L型的制造安裝方便,受力情況好,自身質量較小,但是,吊運貨物通過支腿處的空間相對小一些。C型的支腳做成傾斜或彎曲形,目的在于有較大的橫向空間,以使貨物順利通過支腳。
2. 雙主梁 雙主梁門式起重機承載能力強,跨度大、整體穩定性好,品種多,但自身質量與相同起重量的單主梁門式起重機相比要大些,造價也較高。根據主梁結構不同,又可分為箱形梁和桁架兩種形式。一般多采用箱形結構。
技術參數: 龍門起重機的主要技術參數包括以下幾個方面: 起重量(Rated capacity):指設備能夠安全起重的最大重量。通常以噸(t)或千克(kg)作為單位。 起升高度(Lifting height):指起重機或龍門吊能夠垂直起升的最大高度,通常以米(m)作為單位。 工作速度(Working speed):包括起升速度、小車(龍門吊)或回轉速度(起重機),通常以米每分鐘(m/min)或米每秒(m/s)作為單位。 工作級別(Working class):用來描述起重機或龍門吊的工作強度和使用頻率,一般分為A1-A8級,級別越高表示設備的工作強度越大。 控制方式(Control mode):包括手動控制和電氣控制兩種方式。電氣控制方式可以進一步細分為集中控制和無線遙控等。 動力源(Power source):通常是電動或液壓動力,也有一些使用燃油或氣體動力的起重機。 結構形式(Structure form):指起重機或龍門吊的結構類型,例如單梁起重機、雙梁起重機、門式起重機等。 安全保護裝置(Safety devices):包括限位器、重載保護裝置、防碰撞裝置等,用于確保設備的安全運行和防止意外事故發生。 需要根據實際需求選擇合適的龍門吊或起重機,并參考其技術參數來滿足工作場所的要求。具體的技術參數可能因不同的制造商和型號而有所差異,使用前應仔細查閱相關設備的說明書和技術規格。
本文相關標簽:
龍門吊出租|龍門吊銷售|龍門吊租賃廠家|龍門吊生產廠家|龍門吊廠家
品牌優勢
河南長城 · 二十年匠心鑄就
多年來河南長城持續進行技術創新,已形成不可替代的核心競爭優勢!
河南長城 · 二十年實力見證
為客戶提供整體解決方案和全生命周期服務,百余款產品類型供您選擇!
河南長城 · 二十年服務保障
公司擁有400多家銷售服務機構,多年來累計服務客戶超過2000家,多次收到客戶良好反饋!
生產裝備
聯系方式/contact information
- 郵箱咨詢:632912729@qq.com
- 聯系地址:河南省起重工業園區6號
留言咨詢

微信咨詢

手機網站
河南長城起重主要從事龍門吊,電動葫蘆門式起重機,倒三角龍門吊,包廂龍門吊,雙主梁門式起重機,輪胎式龍門吊,豎井龍門吊,自平衡架橋機,雙梁橋式起機,冶金鑄造吊,防爆橋式行車,抓斗橋式起重機,潔凈室行車,電磁橋式起重機,歐式雙梁橋式起重機,提梁機,運梁炮車等路橋起重設備的研發制造及銷售服務,設備質量有保障,支制定制,價格合理,歡迎咨詢:18238777579
版權所有 Copyright @
河南省長城起重設備集團有限公司 All Rights Reserved.